Логотип

ЕЛЕКТРИЧНЕ ПОСТАЧАННЯ БУДІВЕЛЬ І СПОРУД

Послуги з електротехнічного проектування та інжинірингу в мережах 0,4кВ, 6(10)кВ, 35кВ - 330кВ.
Схеми електричні. Прокладка кабельних трас.
Заземлення та блискавкозахист будівель і споруд.

e-mail:   electrical.projects.73@gmail.com
  +38 (098) 499-02-47
  +38 (050) 133-03-50

СТАДІЇ ПРОЕКТУВАННЯ

ЕЛЕКТРОТЕХНІЧНА ЧАСТИНА ПРОЕКТУ - Стадія "П"

      Стадія "П" розробляється для визначення містобудівних, архітектурних, екологічних, технічних, технологічних, інженерних рішень об'єкта, кошторисної вартості будівництва.
      Креслення виконуються в чіткій і лаконічній формі, без надмірної деталізації, у складі та обсязі, достатньому для обгрунтування проектних рішень, визначення обсягів основних будівельних робіт, потреб в обладнанні, будівельних матеріалах і конструкціях, положень з організації будівництва, а також визначення кошторисної вартості будівництва.
      До складу проектної документації стадії "П" не входять інженерно-технічні, техніко-економічні, екологічні та інші розрахунки, матеріали проектів-аналогів, а також матеріали інженерних вишукувань.
      Склад розділів проектної документації стадії "П" визначається ДБН А.2.2-3:2014.

План розташування обладнання

ЕЛЕКТРОТЕХНІЧНА ЧАСТИНА РОБОЧОГО ПРОЕКТУ - Стадія "РП"

      Стадія "РП" розробляється для технічно нескладних об'єктів, а також об'єктів із застосуванням проектів (проектних рішень) повторного використання.
      Проектна документація стадії "РП" розробляється для визначення містобудівних, архітектурних, екологічних, технічних, технологічних, інженерних рішень об'єкта, кошторисної вартості будівництва і виконання будівельних робіт.
      Проектна документація стадії "РП" складається з двох частин - затверджувальної та робочої.
      Склад і зміст затверджувальної частини визначається ДБН А.2.2-3:2014.

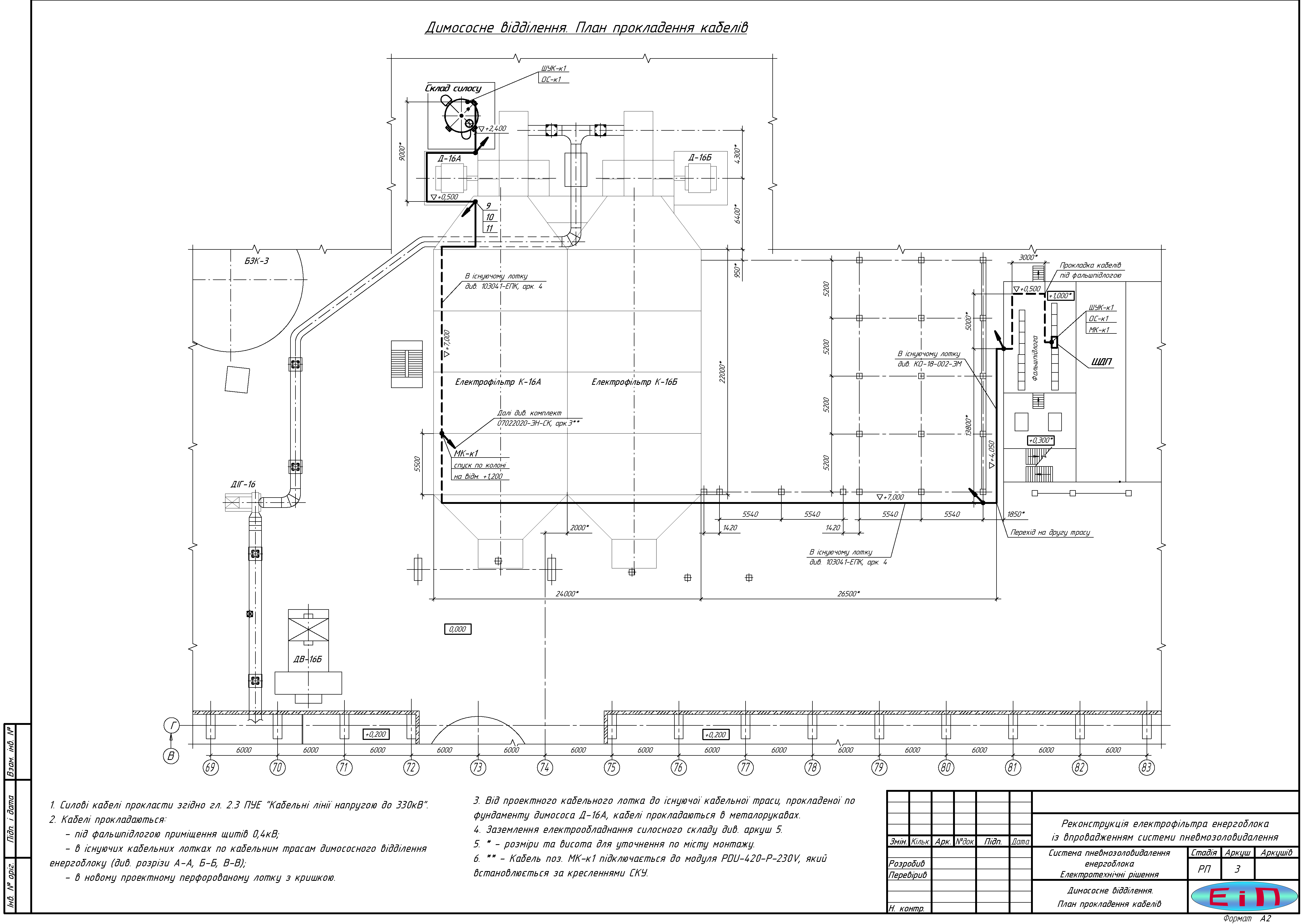
План прокладання кабелів

ЕЛЕКТРОТЕХНІЧНА ЧАСТИНА РОБОЧОЇ ДОКУМЕНТАЦІЇ - Стадія "Р"

      Стадія "Р" розробляється на основі попередньої стадії "П" або затвердженої частини стадії "РП".
      Обсяг і деталізація робочих креслень стадії "Р" доводяться до необхідної кількості і рівня, достатніх для виконання будівельних та монтажних робіт в повному обсязі.
      Також, до складу проектної документації стадії "Р" входять:
      - перелік робіт, для яких необхідно складання актів на приховані роботи та актів проміжного прийняття відповідальних конструкцій;
      - вихідні вимоги щодо розроблення конструкторської документації на обладнання індивідуального виготовлення, включаючи нетипове обладнання.

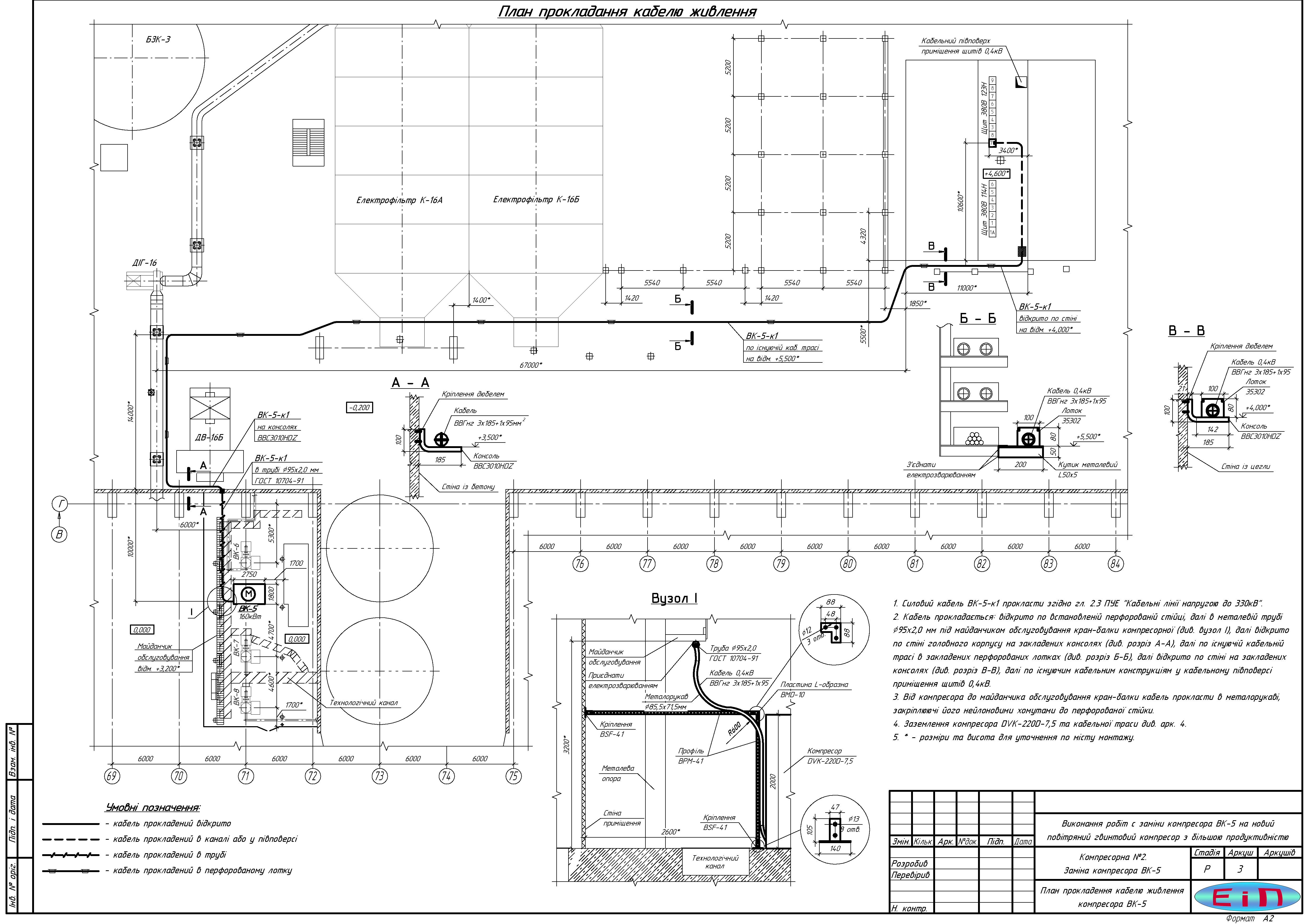
План прокладання кабелю живлення

ОКРЕМІ ЕЛЕКТРОТЕХНІЧНІ КРЕСЛЕННЯ

      За окремими, особливо складними об'єктами будівництва, виконаємо додаткові розробки, які не передбачені нормативними документами і які уточнюють матеріали проекту.
      Також, розробимо проектно-конструкторську документацію на обладнання і НКУ індивідуального виготовлення, включаючи нетипове обладнання або виконаємо технічне завдання заводу-виробнику на виготовлення нетипового обладнання.

Щит електричний. Загальний вид