Логотип

ПРОКЛАДКА КАБЕЛІВ ТА КАБЕЛЬНИХ ТРАС

Послуги з електротехнічного проектування та інжинірингу в мережах 0,4кВ, 6(10)кВ, 35кВ - 330кВ.
Схеми електричні. Прокладка кабельних трас.
Заземлення та блискавкозахист будівель і споруд.

e-mail:   electrical.projects.73@gmail.com
  +38 (098) 499-02-47
  +38 (050) 133-03-50

НОРМАТИВНА ДОКУМЕНТАЦІЯ ТА ПЛАНИ ПРОКЛАДКИ КАБЕЛІВ

Виконаємо креслення планів прокладки силових та контрольних кабелів по кабельних естакадах, в галереях, кабельних тунелях, траншеях і виробничих приміщеннях, згідно з наступною нормативною документацією:
1. Гл. 2.1 ПУЕ "Електропроводка";
2. Гл. 2.2 ПУЕ "Струмопроводи напругою до 35 кВ";
3. Гл. 2.3 ПУЕ "Кабельні лінії напругою до 330 кВ";
4. Гл. 2.4 ПУЕ "Повітряні лінії електропередавання напругою до 1 кВ";
5. Гл. 2.5 ПУЕ "Повітряні лінії електропередавання напругою понад 1 кВ до 750 кВ";
6. ДСТУ Б А.2.4-19:2008 "СПДБ. Зображення умовні графічні електрообладнання та проводок на планах".

КАБЕЛЬНІ ЕСТАКАДИ

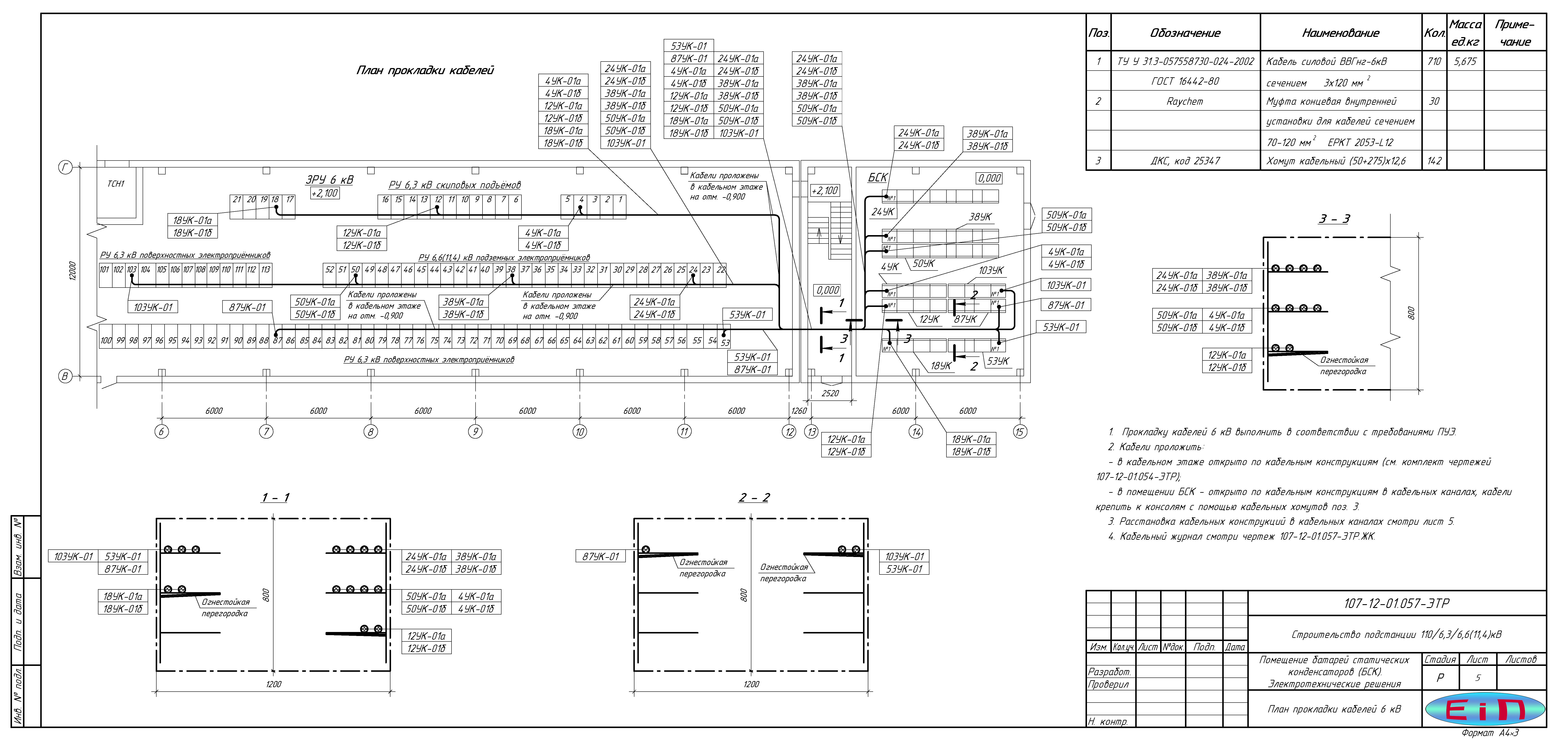
План прокладки кабелів по естакадах

КАБЕЛЬНІ ГАЛЕРЕЇ

План прокладки кабелів в галереї

КАБЕЛЬНІ ТУНЕЛІ

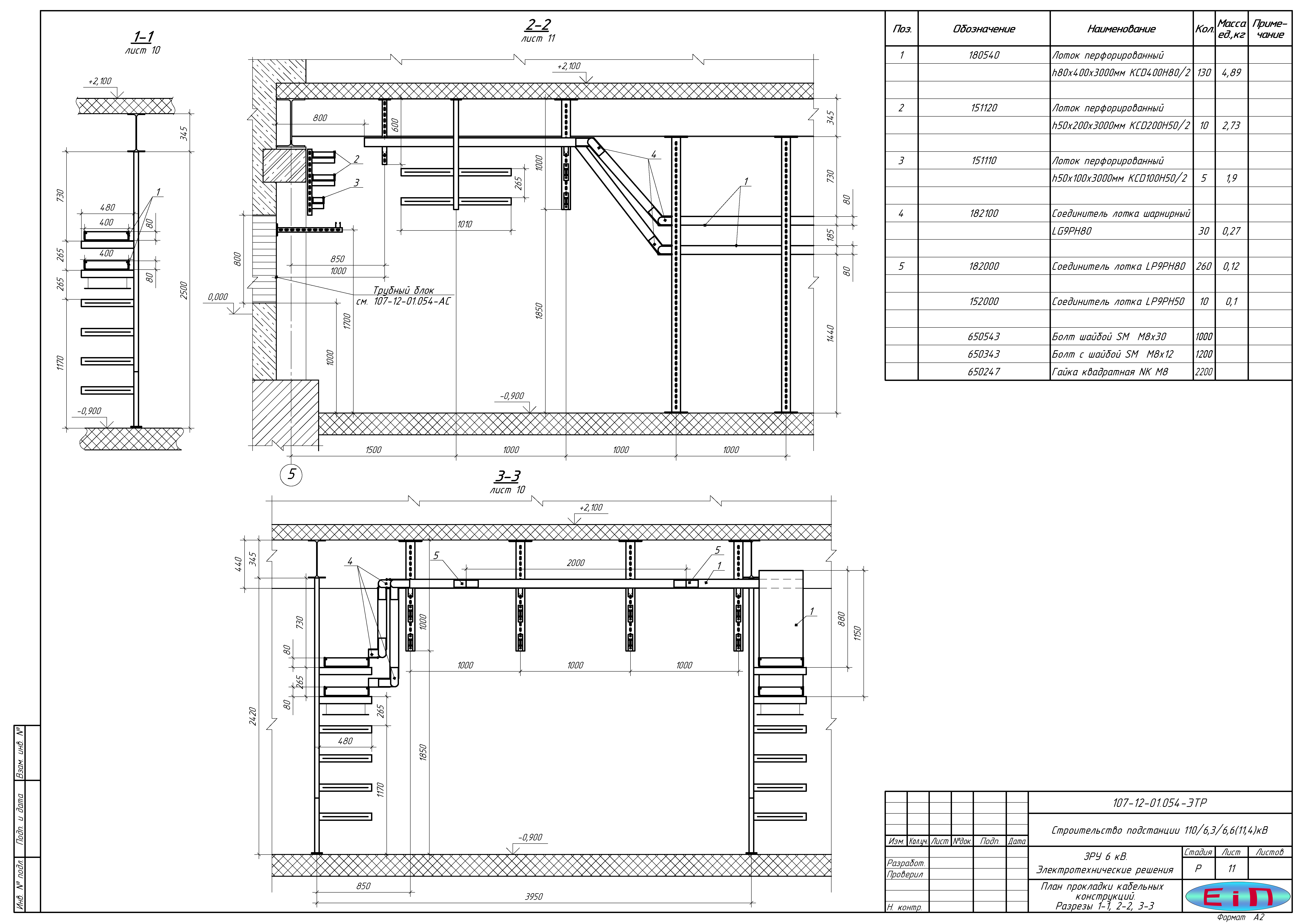
План прокладки кабелів в тунелі

КАБЕЛЬНІ ТРАНШЕЇ

План прокладки кабелів в траншеї

ПРОКЛАДКА КАБЕЛІВ В ПРИМІЩЕННЯХ

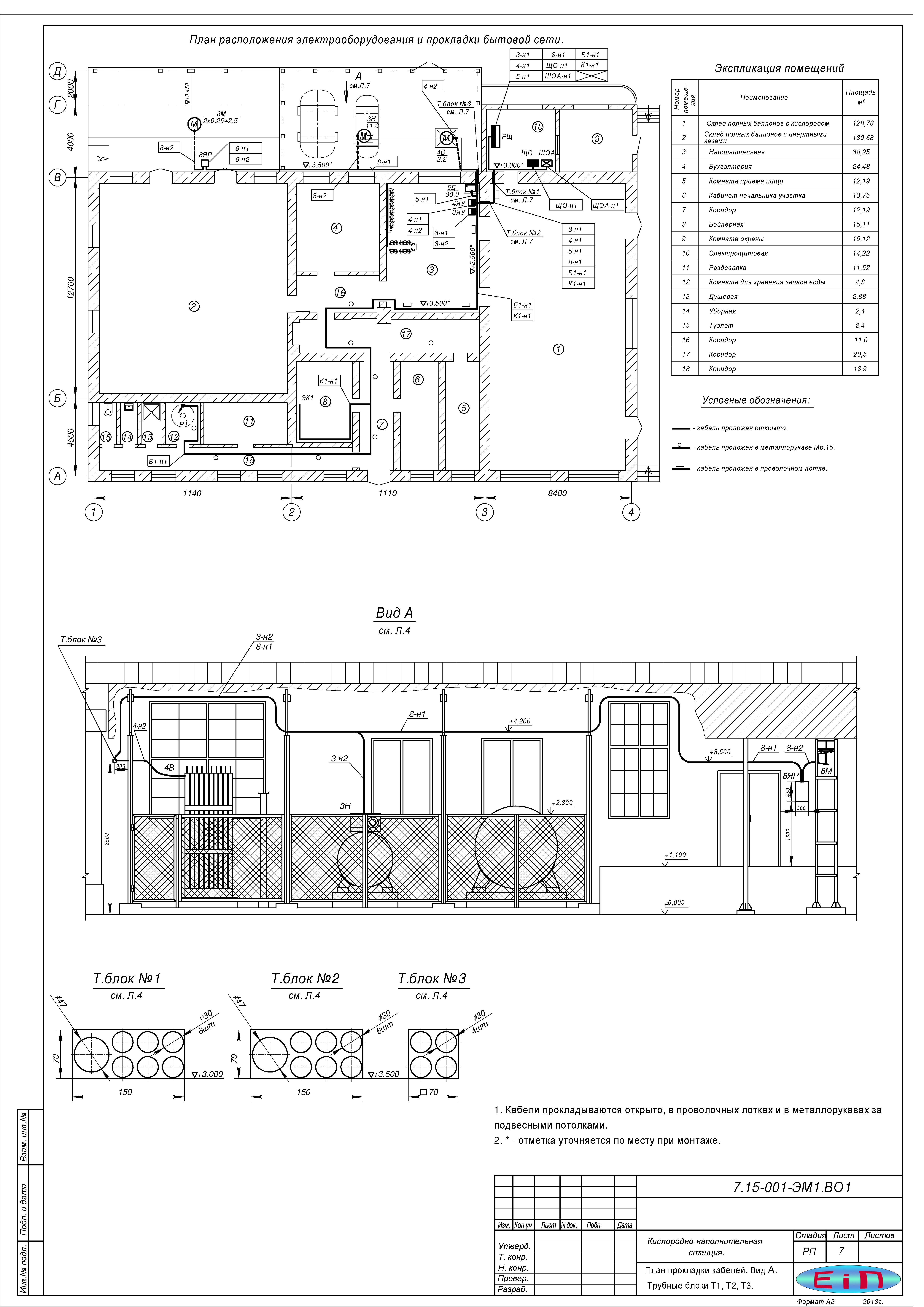
План прокладки кабелів у приміщенні